Tranform 2026

Music and Worship Academy - To develop a place for music and dramatic arts education that serves young people and families across Luton and beyond, releasing young people into their God given potential” Dionne Shand

 
 

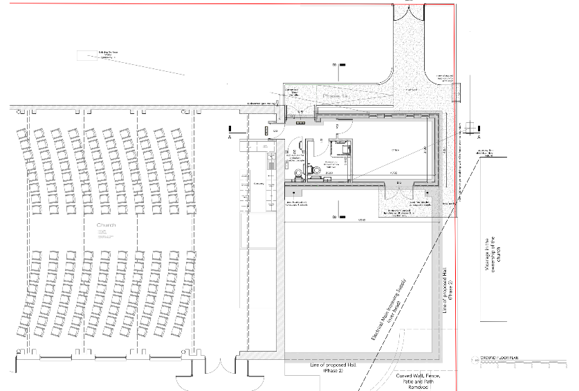
Phase 1 - Accessible Toilets and Music Academy multi-purpose room

We have successfully received planning and building control permission for the re-development of the site at St Hugh’s to give us the ability to serve our local community and to expand the effectiveness of the Music Academy. Initially we want to raise the £150k needed to put in place a music academy classroom/ studio with accessible toilets, (see Plan above) which connects with the Church auditorium where the drums/guitars and other classes take place.

We have also been given a wonderful gift which has enabled us to re-cover and insulate the Church hall roof and to then install 28kw of Solar PV and battery storage. This will radically reduce our carbon emissions and our electricity costs.

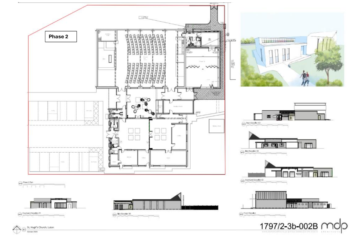
Phase 2 - Youth and Community centre

We then want to put in place the full Youth and Community centre that will attach to the first phase of this project, yielding a subdividable hall which will give us two extra spaces for music classes or one larger space for dance/drama and community events. The architects and QS estimate for building the whole of this new Youth and community centre are circa £350,000.

Phase 3 - Whole site

We have plans drawn up to link both buildings together, yielding a new glass fronted entrance to the Church with more accessible toilets and sliding folding doors creating a expandable cafe area. At present we can cater for about 60 in the hall and this will grow the flexibility of this space for the many community events that happen here at St Hugh’s.